WhatsApp Destek
Telefon Destek
Revilla Yapı

RC-2140

RC-2140, çağdaş üçgen cephe formu ve geniş cam yüzeylerle öne çıkan özgün bir mimariye sahiptir. Keskin çatı çizgileri, modern pencere geometrileri ve beyaz dış cephe kaplaması sayesinde model hem minimal hem de ikonik bir görünüm sunar. Üçgen cephe yapısı yalnızca estetik bir detay değil; aynı zamanda iç mekâna gün boyu doğal ışık taşıyan önemli bir mimari avantaj sağlar.

Geniş Cam Açıklıklarıyla Aydınlık ve Ferah Yaşam Alanları
Evin ön cephesinde kullanılan büyük üçgen pencereler, yaşam alanlarının ışık kalitesini önemli ölçüde artırır. Bu tasarım; manzarayla güçlü bir bağ kurmayı, bahçe veya doğa görüntüsünü iç mekânın bir parçası hâline getirmeyi mümkün kılar. RC-2130, hem gün ışığını maksimumda kullanan hem de görsel olarak ferahlık sunan bir yapı formu ortaya koyar.

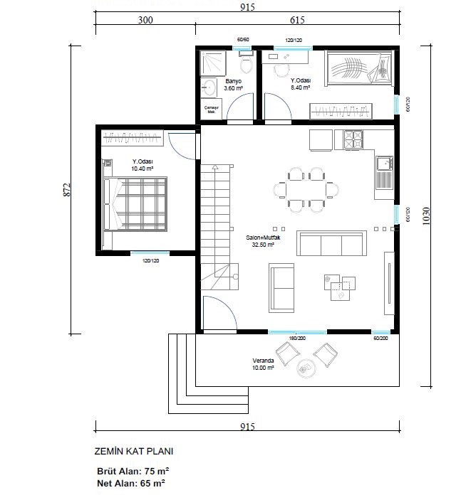
80 m² Zemin Katta Fonksiyonel ve Konforlu Mekân Dağılımı
Zemin katta 34 m² genişliğinde salon + mutfak alanı bulunur. Bu alan hem günlük aile yaşamı hem de misafir ağırlama için ideal bir düzen sunar. Açık mutfak yapısı, yemek alanı ve oturma bölümünü bütünleştirirken akıcı bir yaşam deneyimi sağlar.
Zemin katta ayrıca 13.40 m² ebeveyn odası ve 9 m² ikinci yatak odası yer alır. Böylece birinci katta yer alan özel bölümden bağımsız şekilde, tüm günlük ihtiyaçlar tek katta karşılanabilir. Girişte yer alan 4.70 m² antre ve 5.20 m² banyo, pratik kullanım sunan fonksiyonel bir düzen oluşturur.

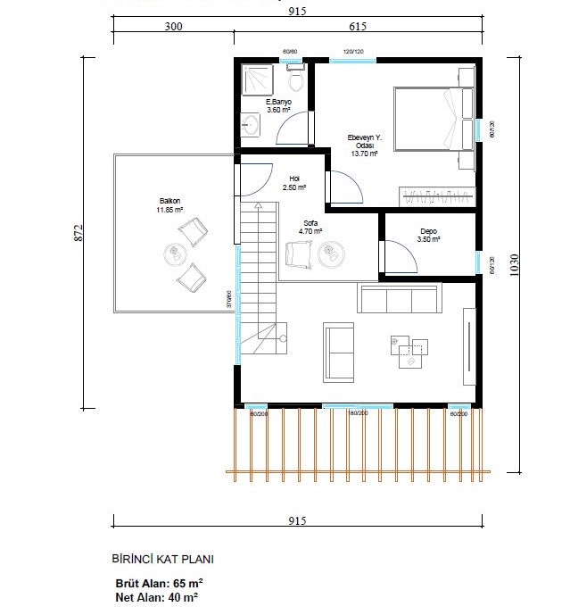
Üst Katta Geniş Balkonlu Özel Yaşam Alanı
Birinci katta 9 m² bir yatak odası ve 6.40 m² hol alanı bulunur. Bu bölüm, zemin kattaki sosyal alanlardan tamamen ayrılarak sakin bir özel yaşam bölgesi oluşturur.
Katın en dikkat çekici özelliği ise 32 m² büyüklüğündeki geniş açık balkondur. Bu balkon; yoga alanı, açık hava oturma düzeni, kahve köşesi, bitki bahçesi veya hobi alanı olarak değerlendirilebilir. Geniş yüzeyi sayesinde hem sosyal hem de bireysel kullanım için son derece esnek bir açık yaşam alanı sunar.

Galeri Boşluğu ile Mekânsal Derinlik Sağlayan İç Mimari
10.60 m²’lik galeri boşluğu, üst kat ile alt kat arasında görsel bir bağlantı oluşturarak evin iç hacmini olduğundan daha büyük hissettirir. Bu modern iç mimari dokunuş, RC-2130’un ferah ve şık atmosferini güçlendirir. Aynı zamanda üçgen pencerelerden gelen ışığı üst kata taşıyarak doğal aydınlatmayı artırır.

Spiral Merdiven ile Modern ve Alan Tasarruflu Çözüm
Evde kullanılan yuvarlak formdaki spiral merdiven, hem modern bir estetik sunar hem de minimum alan kullanımıyla işlevsel bir geçiş sağlar. Zemin katın geniş salon alanını bölmeden üst kata ulaşmayı mümkün kılar.

Hafif Çelik Konstrüksiyon ile Dayanıklı ve Güvenli Yapı
RC-2130, hafif çelik sistemle üretilen dayanıklı bir konut modelidir. Çelik yapı sistemi sayesinde deprem dayanımı yüksektir, yapısal sağlamlığı uzun yıllar korunur ve ısı yalıtımı açısından avantaj sağlar. Modern mimari ile güçlü mühendislik birleşerek güvenli bir yaşam alanı sunar.

Doğa İçinde Şık ve Modern Bir Yaşam Arayanlar İçin İdeal
Geniş açıklıkları, fonksiyonel oda dağılımı, büyük balkon alanı ve ikonik üçgen cephe tasarımıyla RC-2130; doğada, bahçeli alanlarda veya şehir dışı konut projelerinde öne çıkan bir modeldir. Hem aile yaşamına uygun hem de yazlık/hafta sonu evi olarak ideal bir çözümdür.

FİRMAMIZIN SORUMLULUĞUNDA OLAN İŞLER

  • İç ve dış cephe boyalarının yapılması (istenilen renkte)
  • Dış kapının (Çelik kapı) takılması
  • İç kapıların (Melamin kapı) takılması
  • Tüm pencerelerin PVC doğramadan çift ısıcamlı takılması
  • Sıhhi (su) tesisatlarınızın tamamı bağlantı yapacağınız şekilde dışarı kadar çekilecektir (Testleri yapılıp teslim edilecektir)
  • Elektrik tesisatlarınızın tamamı bağlantı yapacağınız şekilde dışarı çekilecektir (Testleri yapılıp teslim edilecektir)
  • Vitrifiye ve armatür gruplarının temin edilmesi (Islak zemin hazırlandıktan sonra montajı müşteri tarafından yapılır)
  • Çatı kaplama ve çatı izolasyonu ile dere inişleri ve olukları yerlerine monte edilecektir

MÜŞTERİMİZİN SORUMLULUĞUNDA OLAN İŞLER

  • Zemin betonu, her türlü hafriyat işleri ve çevre düzenlemeleri
  • Zemin ve duvar kaplama işleri (şap, seramik, fayans, halı vs.)
  • Yapının kurulabilmesi için gerekli olan izinler
  • Yapı harici dış bağlantılar(elektirik, atık su ve temiz su, sayaçlar)
  • Montaj ekibinin konaklama ve yemek giderlerinin karşılanması
  • Mutfak alt ve üst dolapları
  • Nakliye ve nakliye sigortası