WhatsApp Destek
Telefon Destek
Revilla Yapı

RC-1171

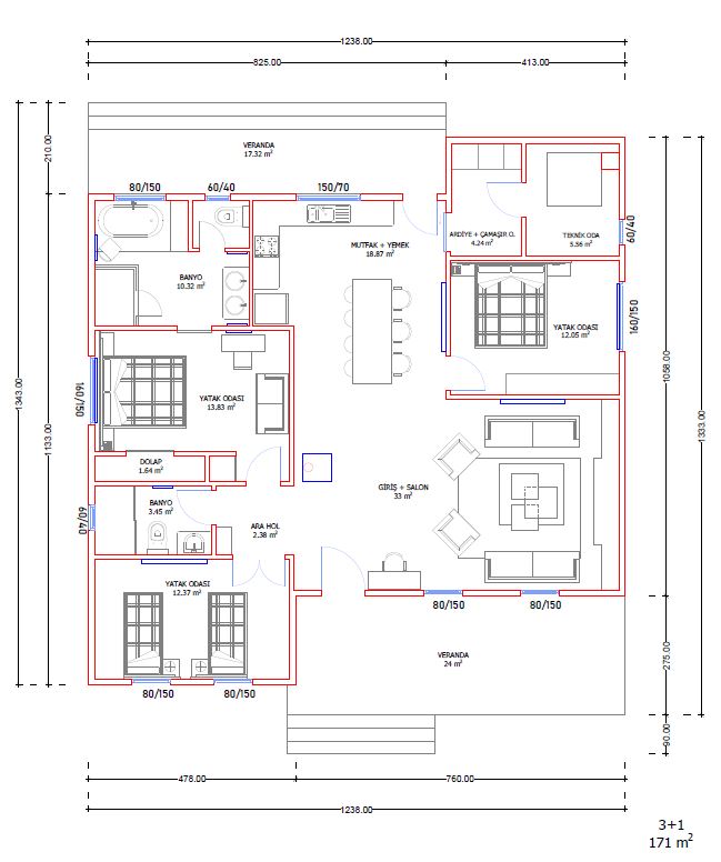
RC-1171, modern çizgiler ile klasik detayları tek bir yapıda birleştiren, hem estetik hem de işlevsel bir 3+1 ev modelidir. Geniş yaşam alanları, ferah odaları ve özenle tasarlanmış verandasıyla konforu en yüksek seviyede hissettirir. Hem şehir içi hem de doğa içinde kullanım için ideal bir mimari sunar.

Geniş ve Davetkâr Yaşam Alanı
Oturma odası ve giriş holünün birleştiği 33 m²’lik geniş yaşam alanı, ailecek vakit geçirmek ve misafir ağırlamak için ferah bir atmosfer sağlar. Şömine detayının da eklenmesiyle sıcak ve huzurlu bir ortam oluşur.

Büyük ve Kullanışlı Mutfak
18.87 m² büyüklüğündeki mutfak + yemek alanı, hem günlük kullanım hem de kalabalık akşam yemekleri için son derece uygundur. Geniş tezgâh alanı ve fonksiyonel planlama sayesinde mutfakta vakit geçirmek keyfe dönüşür.

Konforu Artıran 3 Yatak Odası
Her biri farklı ölçülerde tasarlanmış yatak odaları, aile bireylerinin ihtiyaçlarına göre düzenlenmiştir.
• 13.83 m² ebeveyn odası
• 12.37 m² çocuk/genç odası
• 12.05 m² misafir ya da ikinci çocuk odası

Gömmeli dolap alanları ve ferah pencere düzeniyle odalar rahat bir yerleşim fırsatı sunar.

Lüks Detaylı Banyo Alanları
Ev içinde toplam iki adet banyo yer alır:
• 10.32 m² geniş ana banyo
• 3.45 m² ortak kullanım banyosu
Büyük banyoda yer alan küvet ve kullanım rahatlığı sağlayan yerleşim, evin konfor seviyesini yükseltir.

Fonksiyonel Ek Alanlar
• 4.24 m² çamaşır + ardiye
• 3.55 m² teknik oda
• 1.66 m² vestiyer alanı
Bu bölümler sayesinde depolama, organizasyon ve teknik ihtiyaçlar evin genel düzenini bozmadan çözülür.

Geniş Veranda ile Açık Alan Konforu
Hem giriş cephesinde 17.32 m², hem arka tarafta 24 m² olmak üzere iki büyük veranda, açık havada keyifli zamanlar geçirmek isteyenler için tasarlanmıştır. Kahve molaları, misafir ağırlama ya da dinlenme alanı olarak kullanılabilir.

Estetik Dış Tasarım
Modern kırma çatı formu, iki farklı renk ve doku ile oluşturulan dış cephe tasarımıyla birleşerek benzersiz bir görünüm ortaya çıkarır. Hem sıcak hem modern duruşuyla her ortama uyum sağlar.

FİRMAMIZIN SORUMLULUĞUNDA OLAN İŞLER

  • İç ve dış cephe boyalarının yapılması (istenilen renkte)
  • Dış kapının (Çelik kapı) takılması
  • İç kapıların (Melamin kapı) takılması
  • Tüm pencerelerin PVC doğramadan çift ısıcamlı takılması
  • Sıhhi (su) tesisatlarınızın tamamı bağlantı yapacağınız şekilde dışarı kadar çekilecektir (Testleri yapılıp teslim edilecektir)
  • Elektrik tesisatlarınızın tamamı bağlantı yapacağınız şekilde dışarı çekilecektir (Testleri yapılıp teslim edilecektir)
  • Vitrifiye ve armatür gruplarının temin edilmesi (Islak zemin hazırlandıktan sonra montajı müşteri tarafından yapılır)
  • Çatı kaplama ve çatı izolasyonu ile dere inişleri ve olukları yerlerine monte edilecektir

MÜŞTERİMİZİN SORUMLULUĞUNDA OLAN İŞLER

  • Zemin betonu, her türlü hafriyat işleri ve çevre düzenlemeleri
  • Zemin ve duvar kaplama işleri (şap, seramik, fayans, halı vs.)
  • Yapının kurulabilmesi için gerekli olan izinler
  • Yapı harici dış bağlantılar(elektirik, atık su ve temiz su, sayaçlar)
  • Montaj ekibinin konaklama ve yemek giderlerinin karşılanması
  • Mutfak alt ve üst dolapları
  • Nakliye ve nakliye sigortası