WhatsApp Destek
Telefon Destek
Revilla Yapı

RC-1124

RC-1124 modeli, yalın mimari çizgileri ahşap kaplama detaylarıyla birleştirerek hem modern hem sıcak bir görünüm sunar. Geniş saçak yapısı, dış mekânda uzun süre keyifli kullanım sağlar. Dış cephede kullanılan yatay ahşap kaplama eve karakter katar ve doğal çevreyle uyumlu bir estetik oluşturur.

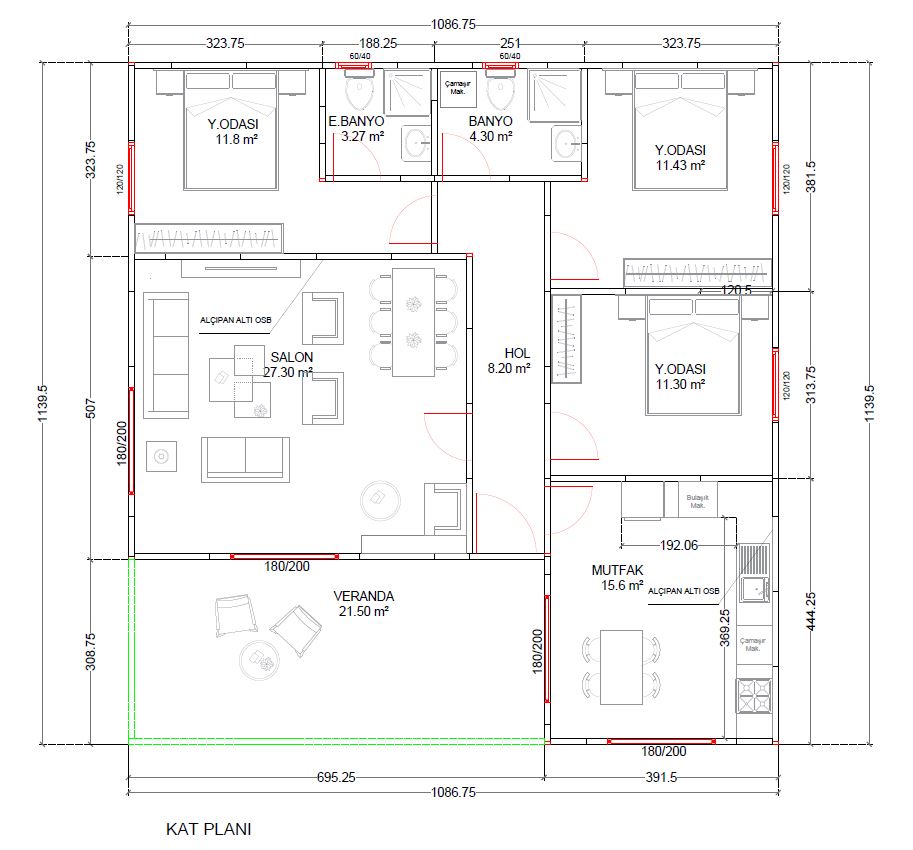
Aydınlık ve Ferah Yaşam Alanı

Geniş pencereler ve açık plan salon tasarımı doğal ışığın tüm gün iç mekâna dolmasını sağlar. Salon ile verandanın bütünleşik konumu yaşam alanını genişleterek iç ve dış mekân arasında rahat bir akış yaratır. Aile yaşamı için ideal olan bu düzen, hem sosyal alanı büyütür hem de ferahlık hissini artırır.

Kullanışlı ve Dengeli Oda Dağılımı

Model 3+1 yerleşimiyle tüm odalarda optimum kullanım sunar. Üç ayrı yatak odası hem çocuklu aileler hem de misafir ağırlamayı seven kullanıcılar için avantaj sağlar. Oda konumları mahremiyeti desteklerken salonun merkezde konumlanması ev içi iletişimi güçlendirir.

Geniş ve Korunaklı Veranda Alanı

Veranda, RC-1124’ün en güçlü özelliklerinden biridir. 21,5 m² büyüklüğündeki bu alan, yılın büyük bölümünde keyifle kullanılabilecek bir açık yaşam mekânı sunar. Ailenizle dışarıda yemek yeme, misafir ağırlama veya gün sonunda dinlenme için ideal ortamı oluşturur.

Fonksiyonel Mutfak Planlaması

15,6 m² geniş mutfak, hem depolama alanı hem de kullanım kolaylığı sağlayacak şekilde tasarlanmıştır. Tezgâh yerleşimi, yemek hazırlarken maksimum ergonomi sunar. Mutfak pencereleri gün ışığını içeri alırken aynı zamanda veranda ile bağlantılı yapısıyla kullanım pratikliği sağlar.

Aile Yaşamına Uygun Banyo Düzeni

Modelde biri ebeveyn banyosu olmak üzere toplam iki banyo yer alır. Bu düzen özellikle sabah saatlerinde yaşanabilecek yoğunluğu azaltır ve konforlu bir günlük rutin oluşturur. Ebeveyn banyosu yatak odasıyla bütünleşik şekilde planlandığı için mahremiyet ve rahat kullanım imkânı sunar.

FİRMAMIZIN SORUMLULUĞUNDA OLAN İŞLER

  • İç ve dış cephe boyalarının yapılması (istenilen renkte)
  • Dış kapının (Çelik kapı) takılması
  • İç kapıların (Melamin kapı) takılması
  • Tüm pencerelerin PVC doğramadan çift ısıcamlı takılması
  • Sıhhi (su) tesisatlarınızın tamamı bağlantı yapacağınız şekilde dışarı kadar çekilecektir (Testleri yapılıp teslim edilecektir)
  • Elektrik tesisatlarınızın tamamı bağlantı yapacağınız şekilde dışarı çekilecektir (Testleri yapılıp teslim edilecektir)
  • Vitrifiye ve armatür gruplarının temin edilmesi (Islak zemin hazırlandıktan sonra montajı müşteri tarafından yapılır)
  • Çatı kaplama ve çatı izolasyonu ile dere inişleri ve olukları yerlerine monte edilecektir

MÜŞTERİMİZİN SORUMLULUĞUNDA OLAN İŞLER

  • Zemin betonu, her türlü hafriyat işleri ve çevre düzenlemeleri
  • Zemin ve duvar kaplama işleri (şap, seramik, fayans, halı vs.)
  • Yapının kurulabilmesi için gerekli olan izinler
  • Yapı harici dış bağlantılar(elektirik, atık su ve temiz su, sayaçlar)
  • Montaj ekibinin konaklama ve yemek giderlerinin karşılanması
  • Mutfak alt ve üst dolapları
  • Nakliye ve nakliye sigortası